Attività didattiche anno scolatico 2021-2022
Avvio a.s. 2021/22: Lettera del Dirigente Scolastico a studenti, famiglie e personale
Protocollo Covid d’Istituto e documentazione collegata
per alunni, famiglie e tutto il personale: Protocollo per la prevenzione e gestione del Covid a.s. 2021/22
Prontuario per alunni e famiglie
Memorandum per studenti e docenti
Attività a distanza:
Integrazione al regolamento disciplinare
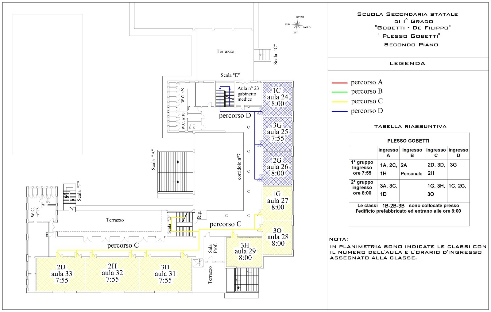
PLANIMETRIE:
Planimetria plesso Gobetti con disposizione classi – piano terra Planimetria plesso Gobetti con disposizione classi – I piano
Planimetria plesso De Filippo con disposizione classi
INDICAZIONE INGRESSI:
Per il personale ATA:
Prontuario anticovid per il personale ATA Allegato – vestizione e uso mascherina
Linee guida pulizia e sanificazione
Scuola Secondaria Statale di Primo Grado "Gobetti - De Filippo"
Ufficio Relazioni con il Pubblico
Scuola Secondaria Statale di Primo Grado "Gobetti - De Filippo"
Tel.: +39 0818761022
Fax: +39 0818060585
mail:NAMM0A100C@istruzione.it
PEC:NAMM0A100C@pec.istruzione.it
Codice meccanografico: namm0a100c
Codice fiscale:96031060633
Fatturazione elettronica:UFV0LZ
Elenco siti tematici
- MIUR
- Agenzia per l'Italia Digitale
- Sito web istituzionale
- Registro elettronico
- Ufficio Scolastico Regionale per la campania
- Ambito Territoriale
- Scuola in chiaro
Informazioni sul sito



